Garncarska 7
Liczba pokoi: 1
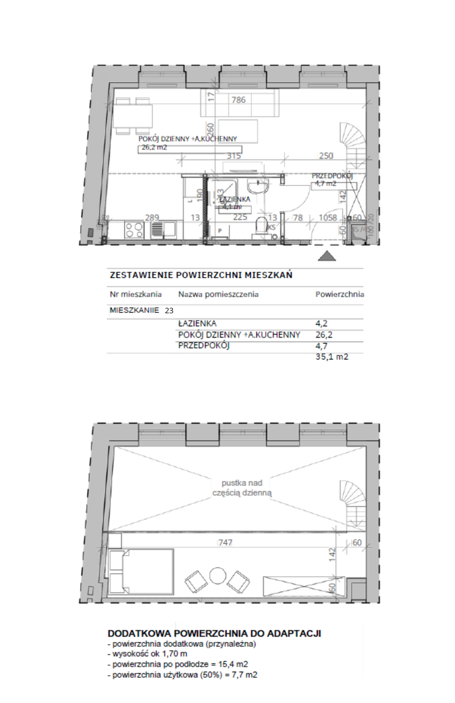
Powierzchnia: 35,10 m²
Cena za m2: 21 616,85 PLN
Piętro: 3



Kuchnia
Łazienka
Ta strona wykorzystuje pliki cookies w celach statystycznych oraz w celu dotosowania naszych serwisów do indywidualnych potrzeb klientów. Zmiany ustawień dotyczących plików cookie można dokonać w dowolnej chwili modyfikując ustawienia przeglądarki. Korzystanie z tej strony bez zmian ustawień dotyczących cookies oznacza, że będą one zapisane w pamięci urządzenia.